
Wohnzimmer und Diele gehen ineinander über und wirken als einziger Raum. Alle anderen Räume sind von hier zu
erreichen.
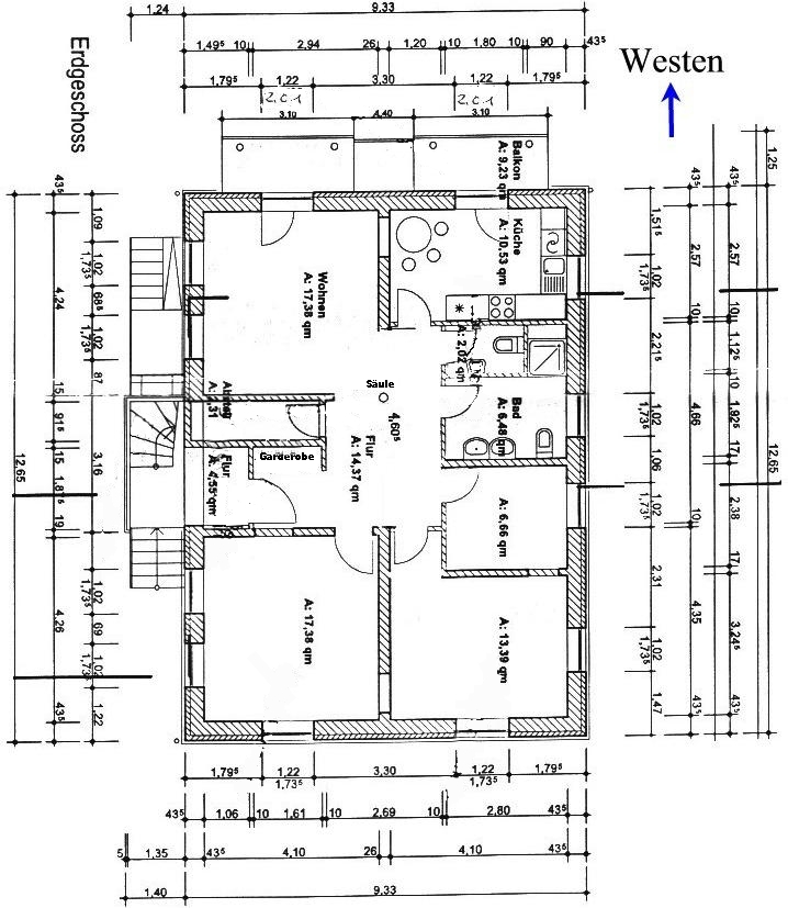
Eine Zeichnung mit Maßen entsprechend der genehmigten Bauzeichnung findet sich weiter unten; im
Detail ist mit kleinen Abweichungen
zu rechnen, die sich bei der Bausausführung ergeben haben oder bei der
Genehmigung verändert wurden.

Nach oben!