Hinterhaus Dachgeschoss - Wohnung links

Hier einige Fotos aus dem Innenbereich:
Zum Grundriss nach unten scrollen!

Ein Blick in den östlich gelegenen Teil des Wohnraums - rechts der offene Küchenbereich) mit Austritt zur Loggia.
Alle Räume sind mit Laminat- Fußböden ausgestattet bzw. stellenweise gefliest.
Die Räume sind hell und reichen nach oben bis unter den Dachfirst. Das Dachgebälk ist teilweise mit in den Wohnbereich einbezogen.


Eine Küchenzeile ist inzwischen vorhanden.


... und ein Blick aus der Küche in die Loggia.

Das Duschbad ist ähnlich ausgestattet wie auf diesem Bild.

Zu den Bildern nach oben scrollen!

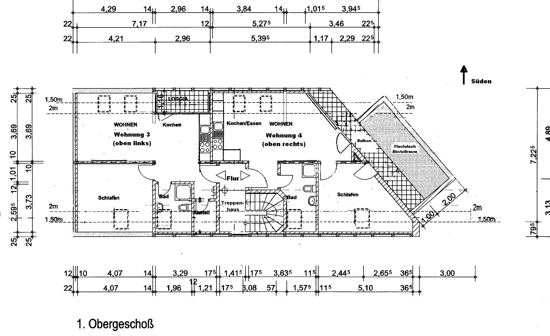
Der Grundriss der Dachgeschosswohnung:

Zu den Bildern nach oben scrollen!